Podrobné informace
Přídavné otočné zařízení na vysokozdvižný vozík je dobrým pomocníkem pro otáčení nákladu. Usnadní a urychlí práci při vysypávání či vylévání např. naložených beden, přepravek a kontejnerů.
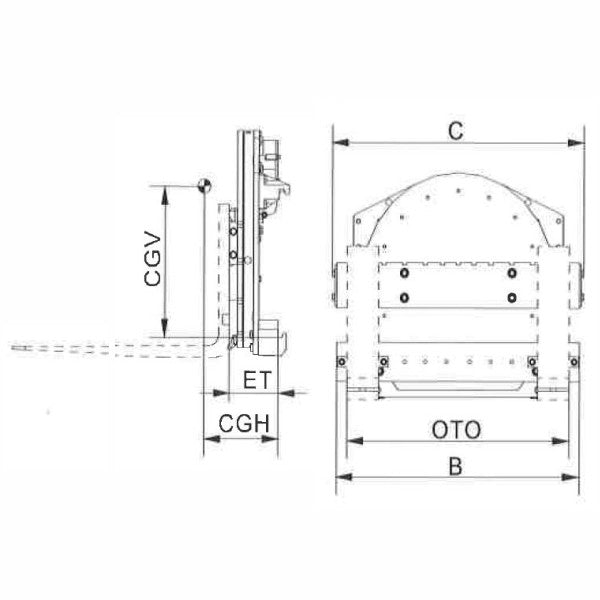
Je schopno se otočit až o 360 stupňů. Vlastní hmotnost otoče je 345 kg, šířka desky 942 mm, max. rozteč vidlic 840 mm, horizontální těžiště 125 mm a vertikální 305 mm.
Naše firma Vám na tento produkt nabízí 24 měsíční záruční dobu.
Technické parametry
| Hmotnost: | 345 kg |
|---|






